22 4 月 拿回去,我不看
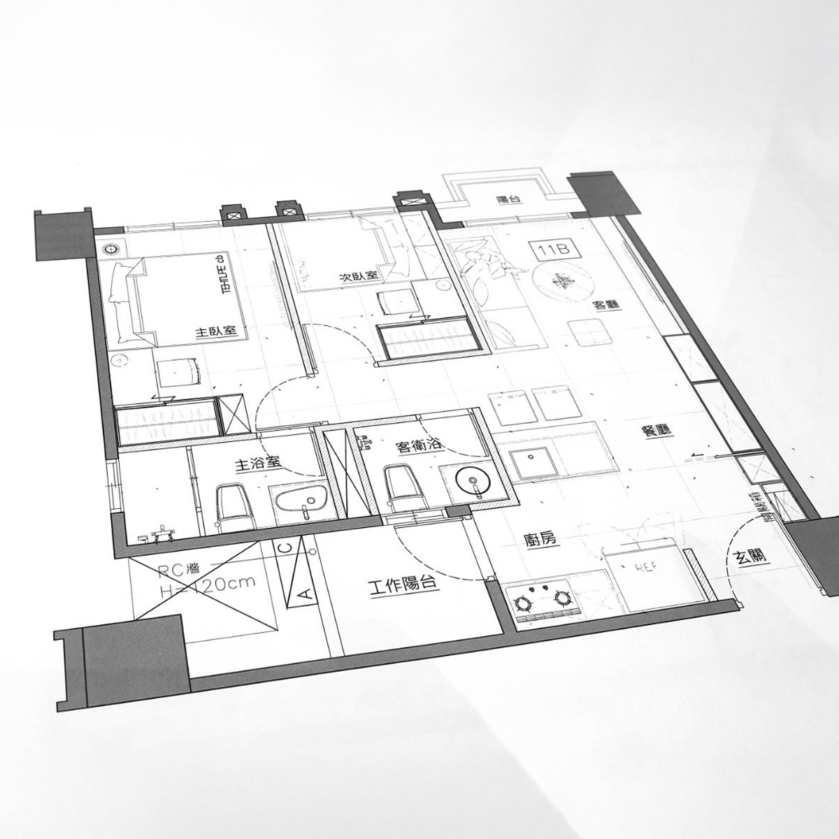
有天早上有場諮詢小會議,就是場"已經被客變"的圖面(如照)。事後年輕的業主方覺得不大妥,一直尋求其他管道能再審視圖面,畢竟是花盡積蓄硬買下的房。然~輾轉知道我們TACC的強悍,也不管是否兩年後才交屋,就趕緊跟我約時間想聽聽我的意見...
有天早上有場諮詢小會議,就是場"已經被客變"的圖面(如照)。事後年輕的業主方覺得不大妥,一直尋求其他管道能再審視圖面,畢竟是花盡積蓄硬買下的房。然~輾轉知道我們TACC的強悍,也不管是否兩年後才交屋,就趕緊跟我約時間想聽聽我的意見...
古人說過"平配才是空間的靈魂"每每血腥的比圖場面,我總是靠一張平面圖就可以幹掉敵手這真是不大好意思~~很難嗎?嗯~~~設計者必須思考很多介面人與人、親切與距離、量體比例、生活與順序、習性或甚至怪怪改不了的僻好...
不知道有幾年沒辦尾牙了,幾乎每一年都是在慌亂中趕工中就過年去了,然後疫情開始就整個沒辦了,這次尾牙很開心,北部中部同事全員到齊~大家互相交流認識之外,相識即是有緣。唱歌我來出錢。所以後來~他們整旁就去開包廂了~我沒去~因為我茫掉了...
很開心的是,如圖,客戶沒有忘記我們,三年前~這對年輕夫妻經由客戶介紹找上我們,當時那間房子格局並不算好~由我親自出手破解讓那間房子在最低限度內展現很棒的空間性。三年後他們的突然降臨...
母親節。我來發個文祝天下辛苦的老媽,母親節快樂~這幾年才比較好一點,我老娘從我開始創業後~其實一直不知道我到底是在幹嘛的,只似懂非懂我讀建築的,很屌~知道我創了業,想說...
大家好~我是李冠霖,來臭屁一下這場好了。這是一對貓奴夫妻,找上我有點曲折。本來~已經在別家設計公司談論到定案,甚至...
我發覺~~非生產型的設計公司是這樣,成長過程的每一次蛻變都會很明顯,速度雖慢但目標卻很明確。隨著公司的個性漸趨成形,員工的汰換也自有輪迴。隨之~就會有慕名而來的孩子,而這些孩子們是年輕有企圖的,至少~心思是乾淨而勇敢的。一日,有個孩子在夜裡傳賴來,說著最近某案上她自身對自己不滿意的狀態。其實我很開心但也好奇了起來,回問她~「妳說說,逐項列出來哪裡對自己不滿意」語後,我稍微整理一下邏輯,並回著我一直堅持下的理念。1.練習強大自我認知及作戰能力補強,是未來你們成為正規設計師本該要的。2.賺錢固然重要,但請秉持著”無論現實如何,我們都要進行一場別開生面的設計,無論會不會成功”。3.隨時保持敏感的視覺判斷。4.多參考其他人的案子,在讚嘆好美好棒時,練習再更深層的去檢討”這設計師在想甚麼”及”這種畫面是怎樣構成”。 一個空間或一個建築或一個畫面的美好,是由很多元素構築出來的,當妳已經會逐漸分析「為何可以這麼美」那妳離一位高手的路就不遠了。我們始終與其他設計公司很不同,設計的路程很長,練就一身好武藝要有方法,以上是我成佛的過程之一,寫出來跟妳分享。加油喔~#我根本像個心靈導師#可以兼賣能量水了...
看過蠻多設計師在靠邀業主不懂,聽過很多同行在說業主只會亂改,好吧~我來教教你們。首要的~先放下你們那裝掰的臉龐,去好好的做一套設計,只要一套平面圖,就能懾服你們那眼中難搞的業主。當然~得像我這麼認真才行,就算遇到這麼不好操作的房屋面積,你也是得超認真去破解。圖案 : 桃園中壢透天改修案屋主之一是一位可愛的輔導老師,想起我小時候如果有這樣可愛的輔導老師,我現在應該不是當醫師就是當法師#然後我根本沒空跟她簽約#她看完平面後就開始搬家說何時可以完工...
Cabinet à tiroirs pivotants雖然,自認為一直在每一場都能有些突破、享玩。但認識我夠深的人,都還能在蛛絲馬跡裡看到我~仍醉心回探現代主義時期的那些創作元素。用色上、質地混雜的、衝突的、不失機能;那也雖然啦,並非每個業主能夠接受。我覺得我本人的價值在,就是我夠膽識去挑戰業主的耐受。然後勸服、勸說,如果再不要~我就會撒嬌兼跟你豪賭~~...